REF. 1724/374 - Casa sola en venta en Lomas de Cocoyoc, Atlatlahucan, Morelos
Descripción
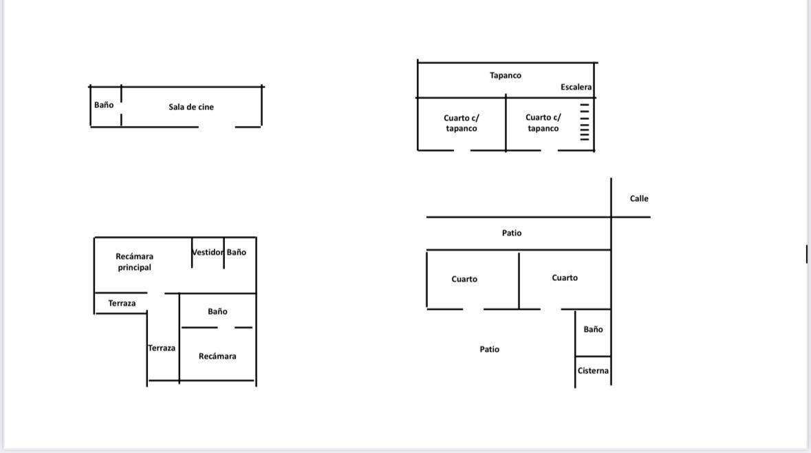
Casa en venta de 2,220 m2 de terreno y 897 m2 de construcción. Consta de 13 recamaras (principal con baño y vestidor) 9 baños (principal con jacuzzi), sala, comedor, cocina integral, enorme jardín, lugar para 3 autos, varias bodegas, diversas áreas para estar.
Descubre esta amplia y funcional residencia, ideal para convertir en casa de retiro, renta vacacional o un proyecto familiar. Ubicada en un fraccionamiento con amenidades exclusivas, esta propiedad ofrece espacios generosos, confort y un estilo de vida sostenible.
Una propiedad única en su tipo, con gran potencial para proyectos residenciales, turísticos o institucionales. ¡Lista para adaptarse a tus necesidades!
Amenidades:
alberca, área para eventos, campo de golf, área de juegos infantiles y cancha de tenis
Dentro del fraccionamiento hay Plaza Comercial, y escuelas.
Contacto
- Oficina: 1724 - Alfa Inmobiliaria Vittal Satelite
- Circuito Museos Poniente 29, Col. Bellavista Satélite, Tlalnepantla de Baz, México
- Teléfonos: 5571595930
- Whatsapp: 5571595930
- Email: [email protected]
- Web: www.alfavittalsatelite.com
Información
- Precio de venta: 13,900,000 MXN
- Mantenimiento: 1,000 MXN
- Plantas : 2
- Año de construcción : 1990
- M2 construidos : 897 m2
- M2 terreno : 2220 m2
- Habitaciones : 13
- Baños : 9
- Armarios empotrados : 7
- Estacionamientos : 3
- Estado de conservación : buen estado
- Agua caliente : central
- Amueblado : sin amueblar
- Cocina : cocina integral
- Tendedero : descubierto
- Equipamiento : trastero/bodega, puerta de seguridad, tenis, golf, cámaras de seguridad, vigilancia 24h, Zonas infantiles, Condominio privado.
- Varios : libre de gravamen.
- Puerta : madera barnizada.
- Ventanas : aluminio.
- Suelos : loseta.
- Instalaciones : acceso a internet, apto crédito, asador, closets, cuarto de lavado, estudio, jacuzzi, jardín, living, patio, playroom, sala comedor, terraza, vestidor, con paneles solares, cuarto multipropósito, calentador Solar, cuarto de TV, cisterna.
Comparte esta Propiedad: